Recuperator de caldura Rotativ - Tangra - EVB-ROT 32 - 3 000 mc/h

Tangra

Garanţie: 24 luni

Product Code: TA10215 Do you need help? 0215553609 / 0753 192222
  • Description
  • Characteristics
  • Download (1)
  • Reviews (0)
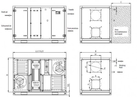
RECUPERATOARE DE CALDURA | EVB-ROT sunt unitati construite pe baza unui principiu modular cu optiune de instalare in interior sau in aer liber.

Modelele standard de Recuperatoare de Caldura ale seriei EVB sunt :
Recuperator de caldura EVB (42, 62, 82)
Volumul de aer incepand de la 3000 mc/h pana la 10000 mc/h.
Unitatile sunt proiectate pentru a functiona numai cu aer proaspat.
Recuperatoarele de caldura TANGRA EVB-ROT se disting printr-o functionare fiabila, fara zgomot de lucru, design inteligent, cu randament ridicat - pana la 75%, si optiunea moist exchange.

CONSTRUCTIE | Recuperatoare de caldura EVB-ROT

Consta dintr-un cadru de profile din aluminiu anodizate in care sunt incorporate elemente de ventilatie. Unitatea este inchisa cu panouri izolate termic si fonic din foi de metal galvanizate , cu grosime de 25mm sau 50mm, depinzand de conditiile de instalare in interior sau in aer liber / vopsite electrostatic pe partea exterioara / culoare RAL7035 /.
Capacele imobile sunt fixate cu suruburi zincate . Usile de intretinere sunt fixate cu incheieturi speciale si dispozitive de inchidere. Congestionarea capacelor este asigurata de benzi adezive cu micro-pori din cauciuc.

Urmatoarele elemente sunt construite in:
• Exhaust and blow fan ( Evacuarea ) - Ventilatoare cu dubla admisie;
• Rotary Regenerative a schimbatorului  de caldura de tip "aer-aer";
• Filters for fresh & exhaust air - Filtre pt aer proaspat de evacuarea acestuia G4 (EU4)-RO 779:2002;
• Sectiunea termica format din heating/cooling water coil ( bobinei ) , separator de picaturi si tava de condens
• Multiple leaf damper - Multiple Clapete manuale sau motorizate
See more Product compliance information

Etichete: RECUPERATOR DE CALDURA, RECUPERARE CALDURA, VENTILATIE CU RECUPERARE DE CALDURA, RECUPERATOARE DE CALDURA, RECUPERATOR DE CALDURA PRET, RECUPERATOR DE CALDURA PREÞ, RECUPERATOARE DE CALDURA PRETURI

Detalii:


  •  

  • Recuperator de caldura rotativ Tangra EVB-ROT

    Download
If you want to express your opinion about this product you can add a review.

The review was sent successfully.

Compara produse

You must add at least one product to compare products.

Was added to wishlist!

Was removed from wishlist!