Program de Sărbători – AirGuru În intervalul 24 decembrie 2025 – 7 ianuarie 2026, echipa AirGuru se află în concediu. Revenim la program normal pe 8 ianuarie 2026, când reluăm procesarea comenzilor și suportul tehnic. Vă mulțumim pentru înțelegere.

Manson rezistent la foc ATC MG2 56

ATC - Belgium
212,87 Lei
La comanda
Limita stoc
Adauga in cos
Cod Produs: MG2 56 Ai nevoie de ajutor? 0215553609 / 0753 192222
Adauga la Favorite Cere informatii
  • Descriere
  • Caracteristici
  • Review-uri (0)
Manson rezistent la foc MG2

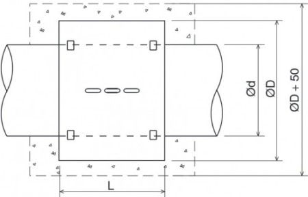
Mansoanele rezistente la foc MG2 pot fi montate in jurul tubulaturilor din plastic care trec printr-un element de constructie, pentru a preveni propagarea focului. Este garantata o zona libera de 100%. Pentru conductele de plastic fabricate din PVC, PP sau PE. Pot fi montate in perete, plafon sau pardoseala. Mansonul MG2 poate fi pus cu usurinta in jurul conductei si apoi inchis cu ajutorul elementului de fixare

Utilizare
Compartimentarea la foc, in special in cadrul instalatiilor sanitare
inchiderea tubulaturilor din plastic in caz de foc
Montate in pereti, plafoane sau pardoseli de beton sau usoare
Rezistenta la foc de pâna la 2 ore
Dimensiuni: 40-50-56-63-75-80-90-100-110-125-160 mm

Material
Structura din otel galvanizat cu material expandabil rezistent la foc

Detalii constructive
Manson rezistent la foc MG2
Carcasa metalica
Element de fixare

Montaj
Se monteaza in jurul tubulaturilor din PVC-PP-PE ce trec prin elemente de constructie rezistente la foc
Etansate cu agenti de etansare BMS, BAP sau BP

Certificare
Conform standardelor NBN 713-020, EN 1366-3

Accesorii
Ghips rezistent la foc BP
Silicon rezistent la foc BMS
Spuma poliuretanica rezistenta la foc BAP

Descriere

Mansonul rezistent la foc MG2 este introdus in perete si montat in jurul tubulaturilor de ventilatie si sanitare din plastic ce trec prin elemente de constructie pentru a preveni propagarea focului. Trecere libera 100%. Pentru tubulaturi din PVC-PP-PE. Introdus in perete. Rezistenta la foc de pâna la 2 ore.
    ATC tip MG2

Explicatie

MG2 = Manson rezistent la foc
90 = Diametrul tubulaturii sanitare din plastic
Informatii conformitate produs

Detalii:

Daca doresti sa iti exprimi parerea despre acest produs poti adauga un review.

Review-ul a fost trimis cu succes.

Compara produse

Trebuie sa mai adaugi cel putin un produs pentru a compara produse.

A fost adaugat la favorite!

A fost sters din favorite!